CSK-ⅠA试块
- 标准: TB52-81
CSK-IA 试块是我国承压设备无损检测标准TB52-81 中 规定的标准试块。
CSK-IA试块是由IIW试块的基础上改进而来的 主要用途有:1利用R100mm曲面测定斜探头的 入射点和前沿长度;2利用50和1.5mm圆孔测定 斜探头的折射角;3利用试块直角棱边测定斜探头 声束轴线的偏离情况;4利用25mm厚度测定探伤 仪水平线性、垂直线性和动态范围;5利用25mm 厚度调整纵波探测范围和扫描速度;6利用R50和 R100mm曲面调节横波探测范围和扫描速度;7利 用50、44和40mm 三个台阶孔测定斜探头分辨力。
水平线性又称时基线性,或扫描线性。是指输入到超声检测仪中的不 同回波的时间间隔与超声检测仪显示屏时基线上回波的间隔成正比关系的 程度。水平线性影响缺陷位置确定的准确度。水平线性的测试可利用任何 表面光滑、厚度适当,并具有两个相互平行的大平面的试块,用纵波直探 头获得多次回波,并将规定次数的两个回波调整到与两端的规定刻度线对 齐,之后,观察其他的反射回波位置与水平刻度线相重合的情况。其测试 步骤如下:
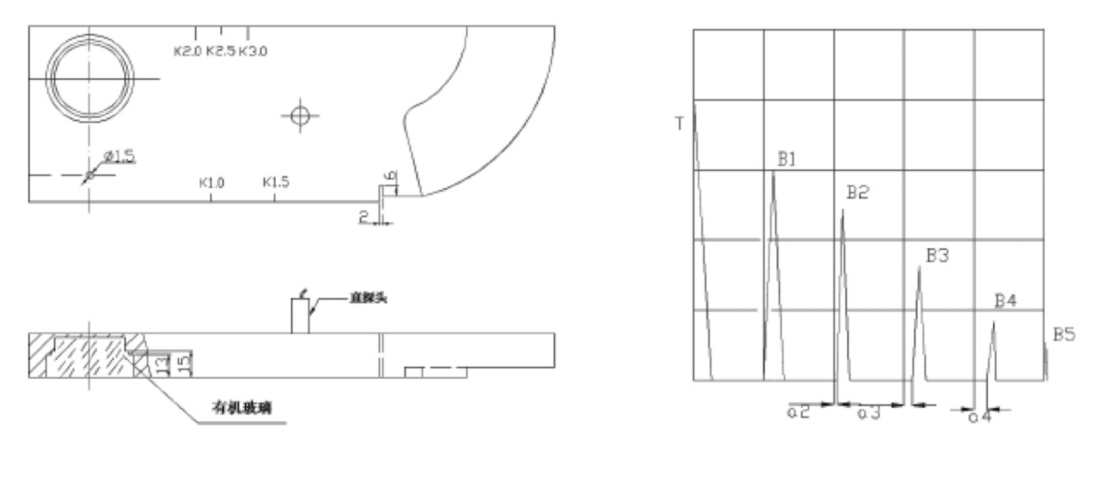
(1)将直探头置于 CSK-IA 试块上,对准 25mm 厚的大平底面, 如图 a 所示
(2)调整微调、水平或脉冲移位等旋钮,使示波屏上出现五次底波 B1 到 B5,且使 B1 对准 2.0,B5 对准 10.0,如图 b 所示
(3)观察和记录 B2、B3、B4 与水平刻度值 4.0、6.0、8.0 的偏差 值 a2、a3、a4。
(4)计算水平误差:公式

式中,amax——a2,a3,a4 中最大者 b——示波屏水平满刻度值

在利用纵波探伤时,可以利用试块的已知厚度来调整探测范围和扫描 速度,此过程我往往和检验时基线性同步进行。当探测范围在 250mm 以 内时,可将探头置于 25mm 厚的大平底上,使四次底部回波位于刻度四, 十次底部回拨位于刻度十,则刻度十就代表实际探测声程为 250mm。当探测声程范围大于 250mm 时,可将探头置于如图的 B 或 C 处,使各次底 波位于相应的刻度处,此时起始零点亦同时得到修正。

由于纵波的声程 91mm 相当于横波声程 50mm,因此可以利用试块 上 91mm 来调整横波的检测范围和扫描速度。例如横波 1:1,先用直探头 对准 91 底面,是 B1、B2 分别对准 50、100,然后换上横波探头并对准 R100 圆弧面,找到最高回波,并调至 100 即可。
(1)抑制旋钮调至“0”,探头置于如图所示位置,左右移动探头, 使显示屏上出现 85、91、100 三个反射回波 A、B、C 如图所示,则波峰 和波谷的分贝差 20Lg(a/b) 表示分辨力。
(2)NB/T47013-2015 中规定,直探头远场分辨力大于等于 20dB。


(1)探头置于如图所示位置,对准 50mm、44mm、40mm 阶梯孔, 使示波屏上出现三个反射波。
(2)平行移动探头并调节仪器,使 50mm、44mm 回波等高,如图所示, 其波峰和波谷分别为 h1、h2,其分辨力为
X = 20Lgh1/h2(dB)
NB/T47013-2015 中规定,斜探头的远场分辨力大于等于 12 分贝。

将探头置于图示位置,向 R100mm 的圆弧发射超声波,前后移动探头, 直到 R100mm 圆弧面反射波达到最高点,此时与 CSK-1A 试块侧面标 线中心点“0”相对应的探头契块那一点即为探头入射点。

根据探头折射角的大小,将探头置于试块的不同位置进行测量,如图所示。波形图同于入射点波形图。
测量时,探头应放正使波束中心线与试块侧面平行,前后移动探头, 找到 50mm 孔或 1.5mm 孔的最高反射波。此时,声束中心线必然与入射 点和圆心之间的连线相重合,即声束中心线垂直于孔表面。这时,试块上 与入射点相应的角度线所标的值即为该斜探头的 K 值。


将探伤仪的抑制和补偿旋钮置于“0”或“关”用直探头放置在图中 A 或 B 位置。并保证探头与试块之间有良好的声耦合。

调整衰减器使试块底波高度为荧光屏的满刻度,此时必须有 30 分贝的 衰减量。然后每衰减 2 分贝用百分率读出反射波高度,直到 26 分贝,在 判断 30 分贝时反射波是否存在,将结果记录表中。评定垂直线性时,以反 射波高度的理想波高为基准,以测试值与基准值的最大正偏差(+d)及最 大负偏差(-d)之和来判定垂直线性。
D=[|+d|+|-d|]×%
盲区是指最小的探测距离,测试方法是:将直探头置于探头位置图中 D、 E 位置,测量 50mm 圆孔反射波。从而可以估计出盲区小于等于 5mm 或 大于等于 10mm,或者介于两者之间。
将直探头置于探头位置图中 F 位置,将仪器个灵敏度旋钮均置于最大, 测试试块中有机玻璃块反射波次数和最后一次反射波高度。以此来估计最 大穿透力,借以比较探伤仪器及探头组合性能随时间变化的情况。
根据 AVG 原理,在探头探伤时可把 R100mm 圆弧面视为大平底反射, 以此来调整探测灵敏度。直探头探伤时可把厚度为 25/100mm 的几个侧面 视为大平底处理,以此来调整灵敏度。另外,也可以根据探伤要求,仪测 量 1.5mm 横通孔反射波来确定灵敏度。


在 CSK-IA 试块上厚 25mm 的平面上,使声束指向棱边,对于 K 值小于等于 1 的探头,声束经底面反射指向上棱角;K 值大于 1 的声束指 向下棱角,前后左右摆动探头,使所测棱边端角回波幅度最高,固定探头 不动,然后用量角器或适当的方法测量斜探头几何中心声束轴线与棱边法 线的夹角(例如测量探头斜面与试块端面垂直线的夹角),即为声束轴线 偏斜角。应当注意:斜探头的声束扩散角较大时,可能影响到最大回波的 探测,以致可能产生较大的测量误差。

谢谢