超声相控阵-A/B试块

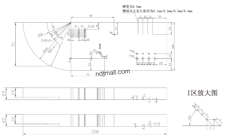
A 型试块结构示意图见图 ,主要用于测试相控阵探头扇形扫描横向分辨力、纵向分辨力和短缺陷分辨力。进行测试时,在探头与试块表面之间涂敷合适的耦合剂,并施加一定的压力确保良好耦合,调节设备进行测试。主要应用包括以下几方面:
(a)扇扫成像横向分辨力:横向分辨力即角度分辨力,将探头放置在试块 A 中 A-1 区一系列通孔的下端面,作扇形扫查,确保 A-1 区中的人工缺陷都在显示区域中。成像中所能分开的最小间距即为该工作状态下的成像横向分辨力。
(b)扇扫成像纵向分辨力:纵向分辨力即沿声传播方向的分辨力,将探头放置在试块 A 中 A-2 区一系列通孔的下端面,作扇形扫查,确保 A-2 区中的人工缺陷都在显示区域中。成像中所能分开的最小间距即为该工作状态下的成像纵向辨力。
(c)短缺陷分辨力:放置在试块 A 中 A-3 区一系列通孔的下端面,进行扫查成像。图像所能清晰显示的最小长度的人工缺陷的长度即为该设备对短缺陷的分辨力。

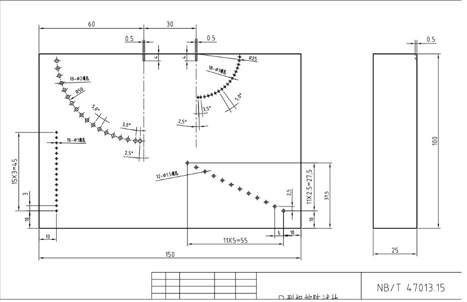
(a)成像横向几何尺寸测量误差:将探头放置在试块 B 中 B-1 区一系列通孔的左端面及 B-2 区一系列通孔的下端面,调节设备实现线性扫查或扇形扫查得到清晰图像。在图像上,依次选择不同孔的中心并进行横向间距测量,读取不同孔图像之间的横向距离测量值。用试块上该两孔之间的标称值减去测量值,即为设备对该两个孔横向几何尺寸测量的误差。
(b)成像纵向几何尺寸测量误差:将探头放置在试块 B 中 B-1 区一系列通孔下端面,调节设备实现线性扫查或扇形扫查得到清晰图像。在图像上,依次选择不同孔图像的中心并进行纵向间距测量,读取不同孔图像之间的纵向距离测量值。用试块上该两孔之间的标称值减去测量值,即为设备对该两个孔纵向几何尺寸测量的误差。
(c)扇扫角度范围测量误差:将探头放置在试块 B 中 B-3 区一系列通孔的上端面。对于直探头,推荐采用 3 个扫描角度范围,该扫描角度范围的选取以垂直于探头阵元分布方向并通过探头中心的线为 0°参考左右对称,推荐选取的角度范围如下:30°(±15°)、60°(±30°)、80°(±40°)。对于斜探头,由于偏转角度及扫描范围差异较大,推荐根据客户要求或根据仪器情况由实验室指定角度范围。设定不同的扇形扫查角度范围,调节设备实现扇形扫查得到清晰的图像。在图像中数出缺陷图像的数目,并根据试块中人工缺陷的示意图,计算出实际扫查角度。如果在同一个增益下,无法全部显示扫查范围内所有人工缺陷的图像;应适当调节增益,使得在该图像中尽可能同时显示出该区域所有的人工缺陷。
(d)扇扫角度分辨力:将探头放置在试块 B 中 B-3 区一系列的上端面,调节设备实现扇形扫查。图像中所能分开的最小角度间距即为该工作状态下的扇扫角度分辨力。
(2)对比试块:确定检测灵敏度、评判缺陷大小、调整扫查速度;
在对比试块上制造一系列特定的人工反射体,用来调整检测灵敏度,制作 TCG 补偿曲线。此外,还可以测试材料的声速、衰减等。
(3)模拟缺陷试块
用于进行检测工艺验证、确定扫查灵敏度和检测人员考试等的试块,试块内部含有自然缺陷或者接近于自然缺陷的人工缺陷,缺陷类型和缺陷位置应具有代表性。
模拟试块的要求、用途和设计与常规 A 超模拟试块相同,材料与被检测工件应相同或相近,制作时应保证材质均匀、无杂质、无影响用途的其它缺陷。可以人工制作,也可以采用以往检测中所发现含自然缺陷的样件。